Descrizione

L’appartamento in asta situato in Via Piave è un’opportunità unica per chi desidera acquistare una proprietà spaziosa ed elegante a un prezzo conveniente. Con una superficie di 110 mq e ben distribuita in 4 vani, questa soluzione abitativa offre spazi ampi e luminosi ideali per soddisfare le esigenze di una famiglia. Il piano terra garantisce un accesso comodo e una maggiore praticità, rendendo l’appartamento adatto anche a persone anziane o con mobilità ridotta. La classe energetica A assicura un ottimo livello di efficienza e comfort, riducendo al minimo i consumi energetici. L’immobile si presenta in ottime condizioni, pronto per essere personalizzato secondo i gusti e le esigenze del nuovo proprietario. Non lasciarti scappare questa occasione e contatta l’agenzia per fissare un appuntamento per la tua visita!

Caratteristiche

Tipologia Vendita
Categorie Appartamento, In Costruzione
Superficie 110 m²
Sup. calpestabile 100 m²
Box 50 m²
Giardino 60 m²
Balconi 95 m²
Taverna/Cantina 50 m²
Vani 4
Camere da letto 3
Bagni 2
Piano Piano terra
Piani edificio 2
Livelli interni 2
Box/Garage 2
Anno costruzione 2001
Classe energetica A
Stato immobile Ottimo
Grado Signorile
Posizione Campagna
Panorama Vista Aperta
Orientamento Nord Ovest
Lati liberi 3
Arredi Arredato a Nuovo
Soggiorno Soggiorno
Cucina Abitabile
Riscaldamento Autonomo — Caldaia a Condensazione
Pavimento giorno Gres Porcellanato
Accesso disabili Nessuna Barriera

Dotazioni e accessori

✓ Antifurto ✓ Aria Condizionata ✓ Ascensore ✓ Bagno Disabili ✓ Camino ✓ Canna Fumaria ✓ Cassaforte ✓ Cancello Elettrico ✓ Darsena Posto Barca ✓ Doppi Vetri ✓ Doppio Ingresso ✓ Fibra Ottica ✓ Filo Diffusione ✓ Geotermia ✓ Impianto Domotica ✓ Impianto Fotovoltaico ✓ Impianto Satellitare ✓ Inferriate ✓ Ingresso Indipendente ✓ Lavanderia ✓ Locale Fumatori ✓ No Animali ✓ No Bambini ✓ Pannelli Solari ✓ Parco Condominiale ✓ Passaggio Automobilistico ✓ Passaggio Pedonale ✓ Piscina ✓ Porta Blindata ✓ Portineria / Custode ✓ Rete Dati ✓ Ripostiglio ✓ Tapparelle Elettriche ✓ Tavolini Esterni ✓ Tennis ✓ Vasca Idromassaggio ✓ Veranda ✓ Video Citofono ✓ Video Sorveglianza ✓ Zanzariere

Posizione

⚖️ Asta Giudiziaria

TITOLO

Rif. STAMPA ASTA
📍 Via Piave 20, Albese con Cassano, 22032, CO
Base d'asta € 190.000
Spese incluse € 1.500
📅 Scadenza 20/01/2025

⚖️ Asta Giudiziaria

  • TipologiaAsta Giudiziaria
  • Scadenza20/01/2025
  • RiferimentoSTAMPA ASTA

Video

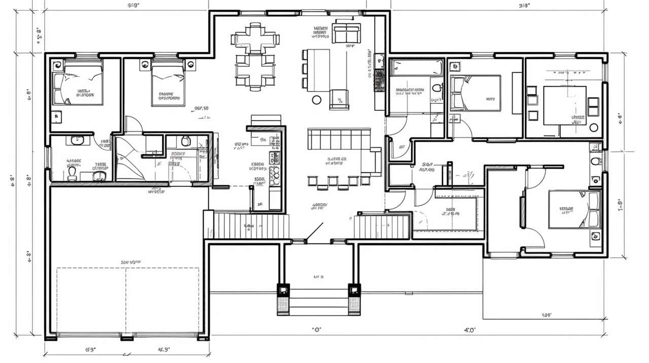
Planimetria

Distanze dai servizi

Centro 840 m
Lago 890 m
Impianto risalita 880 m
Mare 870 m
Parco pubblico 850 m
Porto 620 m
Spiaggia 860 m
Scuola materna 750 m
Scuola elementare 740 m
Scuola media 730 m
Scuola superiore 720 m
Università 710 m
Aeroporto 690 m
Colonninaev 640 m
Fermata bus 680 m
Metro 670 m
Fermata tram 660 m
Stazione servizio 630 m
Stazione ferroviaria 650 m
Banca 370 m
Centro culturale 360 m
Chiesa 350 m
Farmacia 340 m
Ospedale 330 m
Ufficio postale 320 m
Supermercato 310 m